Til salgs
Til salgs
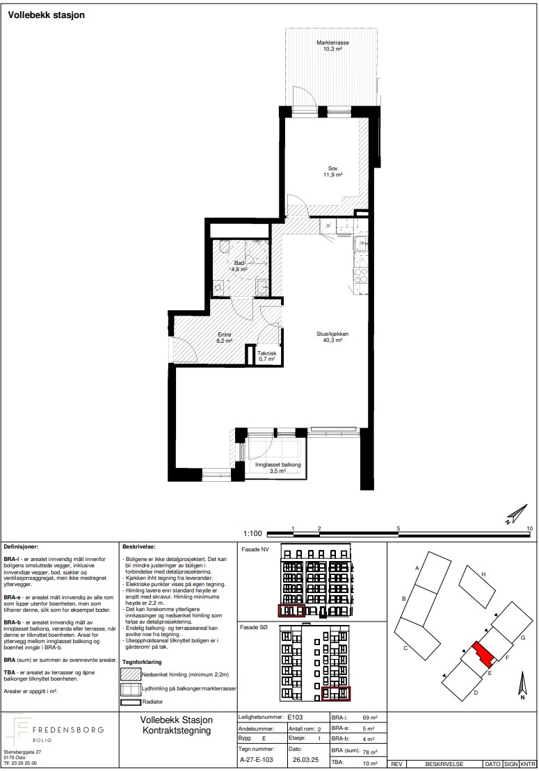
Vollebekk Stasjon | 2R – E103
På Vollebekk Stasjon har vi attraktive 2-roms tilgjengelig på Boligspleis, med forventet ferdigstillelse fra november 2026.
Moderne og stor 2-roms med entré som har god plass til å henge fra seg yttertøy. Fra entréen/gangen er det adkomst til boligens bad med moderne fliser, wc, servant, dusj og opplegg for vaskemaskin. Leiligheten får en stue med vinkelkjøkken i åpen løsning hvor man enkelt får plass for både spisestuen og sofagruppe. Fra stue er det utgang til boligens innglassete balkong på ca. 3,5 kvm. Fra boligen soverom har man direkte tilgang til boligens nordvestvendte markterrasse på ca. 10 kvm.
EnhetE103
Stedsnavn:Vollebekk
Adresse:Hans Møller Gasmanns Vei 3
Utbygger:Fredensborg Bolig
Est. ferdigstillelse:15.11.26
Pris (100%)
Kr. 6 190 000

Omkostninger53 740
EierformBoretslag
Etasje1
Rom2
Kvm69
Nøkkeltall ved deleie (50%)
Innskudd1 238 000
Fellesgjeld1 857 000
Felleskostnader pr.mnd9 557
Leie pr.mnd10 250
I tillegg kommer renter og avdrag på eget lån
Boliger i dette prosjektet
Til salgs
Vollebekk
Hans Møller Gasmanns Vei 3
Kr. 4 290 000
Vollebekk Stasjon | 2R – E102
Til salgs
Vollebekk
Hans Møller Gasmanns Vei 3
Kr 5 990 000
Vollebekk Stasjon | 2R – F101
Til salgs
Vollebekk
Hans Møller Gasmanns Vei 3
Kr 4 290 000
Vollebekk Stasjon | 2R – F102
Til salgs
Vollebekk
Hans Møller Gasmanns Vei 3
Kr 4 490 000
Vollebekk Stasjon | 2R – G403
Til salgs
Vollebekk
Hans Møller Gasmanns Vei 3
Kr 4 590 000
Vollebekk Stasjon | 2R – G503
Til salgs
Vollebekk
Hans Møller Gasmanns Vei 3
Kr 5 790 000
Vollebekk Stasjon | 3R – A402
Til salgs
Vollebekk
Hans Møller Gasmanns Vei 3
Kr 6 090 000
Vollebekk Stasjon | 3R – A502
Til salgs
Vollebekk
Hans Møller Gasmanns Vei 3
Kr 5 790 000
Vollebekk Stasjon | 3R – B402
Solgt
Vollebekk
Hans Møller Gasmanns Vei 3
Kr 6 090 000
Vollebekk Stasjon | 3R – F103
Til salgs
Vollebekk
Hans Møller Gasmanns Vei 3
Kr 5 990 000

