Pilar Bjerke | 3R -106-H0101
Pilar Bjerke er et punkthus på 12 etasjer, med god avstand til omgivelsene i alle retninger, der de aller fleste leilighetene ligger på et hjørne. Dette gir de beste forutsetninger for gode lysforhold, lite innsyn og mange av leilighetene får flott utsikt og gode solforhold.
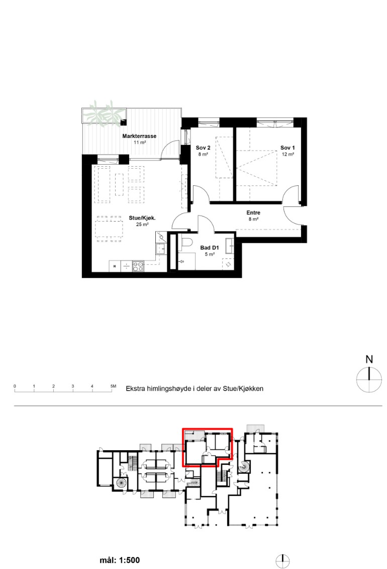
106-H0101 er en flott 3-roms hjørneleilighet i 1. etasje. I leiligheten møter du en entrè med gode muligheter for oppbevaring. Boligen har to soverom, og et flislagt bad med gulvvarme.
Videre er det en åpen stue- kjøkkenløsning med plass til spisestue. Kjøkkenet leveres fra HTH med integrerte hvitevarer. Rommet har vinduer i to himmelretninger, noe som bidrar til en god romfølelse.
Forventede krav til personlig økonomi med Boligspleis:
For å kvalifisere til Boligspleis på denne boligen trenger man fast arbeidsinntekt og ordnet privatøkonomi med lite eller ingen kortsiktig gjeld.
Dine oppsparte midler / egenkapital må være minimum kr 280 000,- Dersom man har kr 280 000 i egenkapital trenger man minimum kr 1 110 000,- i samlet årsinntekt for å bli godkjent av banken til kjøp av boligen. Har man mer oppspart egenkapital blir kravet til årsinntekt lavere.
Boligens kvaliteter
Kjøkken
Det leveres kjøkken fra HTH med integrerte hvitevarer. Det vises til romskjema for beskrivelse av kjøkkeninnredning, og flere detaljer.
Bad
Alle bad leveres som plassbygde bad. Enkelte bad og wc-rom leveres med utenpåliggende/innkasset sisterne. De leiligheter dette gjelder fremgår av salgstegninger. Det vises til romskjema for beskrivelse av baderomsinnredning, og flere detaljer.
Garderobe
Det leveres ikke garderobeskap.
Garasje/Parkering
Det medfølger ikke parkeringsplass til leilighetene.
Boder
Det medfølger én sportsbod pr. boligenhet. Disse varierer i størrelse avhengig av bl.a. type boligenhet de tilhører.
Fremdrift og ferdigstillelse
Boligene forventes ferdigstilt 4. kvartal 2026, uten at dette er å anse som bindende frist for overlevering.
Organisasjonsform
Boligenhetene vil bli solgt som andelsleiligheter og organisert som et borettslag
Enhet106-H0101
Stedsnavn:Bjerke
Adresse:Refstadveien 106
Utbygger:Stor-Oslo Eiendom
Est. ferdigstillelse:15.10.26
Pris (100%)

Nøkkeltall ved deleie (50%)
I tillegg kommer renter og avdrag på eget lån
Boliger i dette prosjektet
Til salgs
Pilar Bjerke | 3R -102-H0201
Til salgs
Pilar Bjerke | 3R -102-H0302
Til salgs
Pilar Bjerke | 3R -106-H0203
Til salgs
Pilar Bjerke | 3R -106-H0304
Til salgs
Pilar Bjerke | 3R -106-H0202
Til salgs

