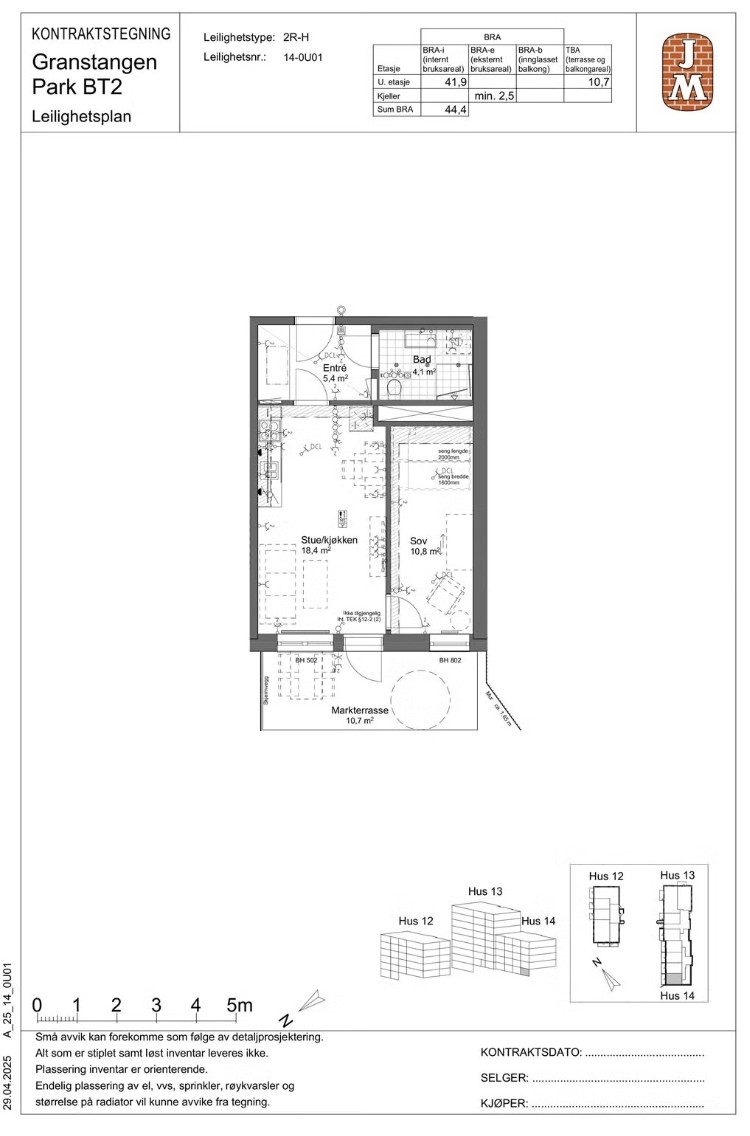
Granstangen Park | 2R-14-0U01
Granstangen Park får en fin og luftig beliggenhet mellom Furuset, Høybråten og Ellingsrudåsen/Karihaugen. Tomten ligger skrånende mot vest og nord.
Boligene på Granstangen Park med Deleie består av lyse, moderne og svanemerkede to- og treroms leiligheter med egen balkong eller terrasse.
Uteområdene utenfor bygget vil bli opparbeidet med grønne fellesarealer, godt med møteplasser og sykkelparkering.
Granstangen Park vil også opparbeides med et fint torg med serveringslokale, mange naturlige møteplasser, lekeapparater og dagligvareforretning. Dette bygget vil bli en del av en større boligutvikling som vil bestå av ca. 600 leiligheter. Området vil blant annet ha dagligvare, kafé, seniorsenter og felles storstue. Ca. 350 av boligene blir borettslagsleiligheter. De øvrige boligene planlegges som senior- og utleieboliger. Les mer om Granstangen Park på prosjektets hjemmeside:
Den aktuelle boligen er en lekker og arealeffektiv 2-roms leilighet med fin planløsning.
Boligens høydepunkter
* Stilrent kjøkken med integrerte hvitevarer
* Svanemerkede og energieffektive leiligheter
* Markterrasse på 10 kvm
* 3-stavs eikeparkett
* Balansert ventilasjon
* Sportsbod
* Felles takterrasser, selskapslokale og «verksted»
* 5 års utbyggergaranti
* Gunstig finansiering på fellesgjeld og lave rentekostnader (avdragsfrihet i 10 år)
* Nærhet til offentlig kommunikasjon (T-bane eller buss)
Enhet14-0U01
Stedsnavn:Furuset
Adresse:Granstangen 25, 1051 Oslo
Utbygger:JM
Est. ferdigstillelse:15.10.2027
Pris (100%)

Nøkkeltall ved deleie (50%)
I tillegg kommer renter og avdrag på eget lån

